The Life Cabinet.

The collaboration between Studio Nada Debs and Roads for Life, a transformative take on the essential first-aid kit was designed for their auction. The Life Cabinet, conceived as a reimagined medicine cabinet, seamlessly blends functionality with aesthetics, allowing it to be placed anywhere in a home for quick access. Proceeds from the collaboration's auction contribute to the noble cause supported by Roads for Life, adding a philanthropic dimension to this innovative design endeavor.

Designed during employment with Studio Nada Debs.

Crafted with precision using Nada Debs' unique techniques, the Life Cabinet features tin contour inlay with colored veneer and mother-of-pearl. The doors of the cabinet serve as a canvas, translating the elements of a traditional first-aid kit into exquisite and visually striking design details.

Inside, crafted drawers house the necessary items for a first-aid kit, seamlessly combining functionality with elegance. Additionally, the cabinet features shelving, providing versatile storage for other household items.

Beyond its utilitarian purpose, the Life Cabinet stands as a symbol of merging artistry with practicality, making it an elegant addition to any household.

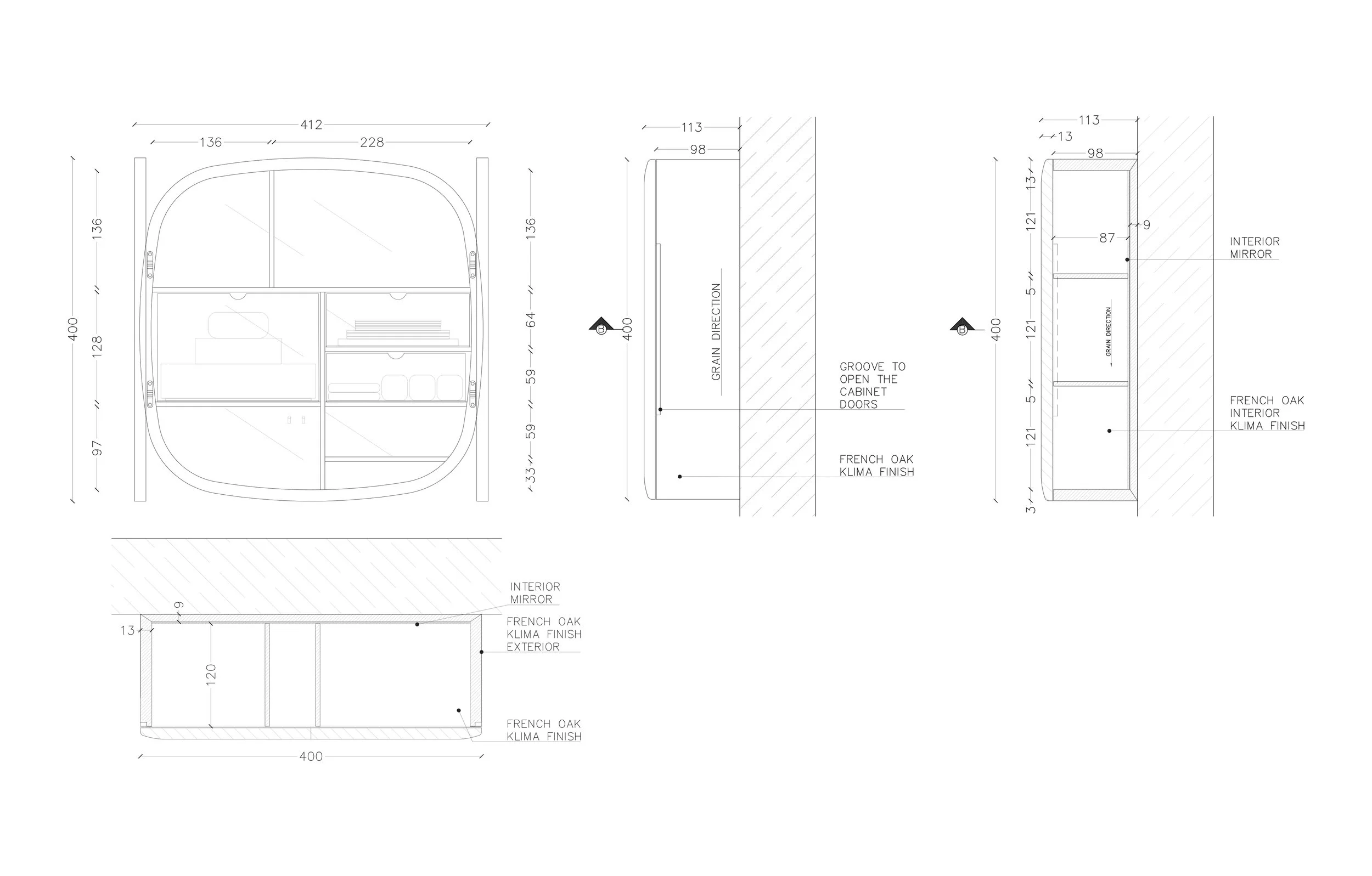
Responsible for the entire production process, from conceptualisation to realisation, shop drawings were generated for the Life Cabinet.

Taking charge of collaboration with skilled woodworkers and craftsmen, I ensured that the intricate design details, including tin contour inlay with colored veneer and mother-of-pearl, were accurately translated into the final product. This hands-on approach guaranteed the seamless execution of the envisioned design, resulting in a meticulously crafted and visually stunning Life Cabinet for the Roads for Life auction.

Next
Next

Studio Nada Debs Social Media Campaigns.